ITT AAMM-01 Manuale Utente Pagina 12

  • Scaricare
  • Aggiungi ai miei manuali
  • Stampa
  • Pagina
    / 24
  • Indice
  • SEGNALIBRI
  • Valutato. / 5. Basato su recensioni clienti
Vedere la pagina 11
12
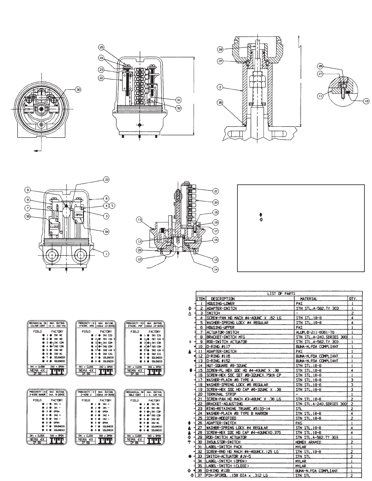
SWITCH PACK 2, SP2.0
FIGURE 3
“A”
“A”
5.29
BIO-TEK
THRU 02.00
9.75
DETAIL “B”
(03.000 & 04.000 SERIES 47)
SEE DETAIL “B”
SECTION “A-A
DETAIL “B”
(BIO-TEK - 01.000)
NOTE:
1. RECOMMENDED SPARE PARTS ARE MARKED WITH AN
ASTERISK (*) ON THE LIST OF PARTS.
2. - USED ON BIO-TEK - 01.000
+ - USED ON BIO-TEK - 02.000
- USED ON 1.500 & 02.000
- USED ON 03.000 & 04.000
3. SWITCHES
PROX P&F #NJ3-V3-Z
PROX P&F #NJ3-V3-N
PROX P&F #NJ3-V3-E
PROX P&F #NJ3-V3-E2
MECH #X97173-V3L (SIL CONT)
MECH #X97174-V3L (GOLD CONT)
4. USED ONLY WITH PROXIMITY SWITCHES.
5. USED ONLY WITH MECHANICAL SWITCHES
WIRING LABELS (ITEM 31)
Vedere la pagina 11
1 2 ... 7 8 9 10 11 12 13 14 15 16 17 ... 23 24

Commenti su questo manuale

Nessun commento